Logo Aurélien Trovato

El Corte Inglès

Castellana

Budget: 300K€

Ouverture: November 2023

Superficie: 28m2

Le comptoire de Clinique à El Corte Inglès Castellana vue de face
Photo du comptoire Clinique à El Corte Inglés Castellana avec vue sur le mural frangrance
Adaptation du dernier concept Clinique dans un des plus importants flagships régional de la marque.

MON ROLE

En tant que Manager Store Design, j’ai supervisé la conception et la mise en œuvre complète du projet en collaboration avec l’équipe Global à New York et le marché local, en me concentrant sur les aspects suivants:

CONCEPTION DU PROJET

Développement du design : Création de visualisations 3D et de plans simples, respectant à la fois les guidelines du retailer et les exigences du marché local.

Validation globale : Présentation et approbation du projet par l’équipe SD/VM Global, suivi d’une diffusion au sein du marché.

Coordination des ressources : Supervision d’un freelance pour la réalisation de plans détaillés.

OPTIMISATION DES COUTS CONSTRUCTION

Objectif : Maintenir les coûts sous la barre de 10K €/m².

Solutions mises en œuvre :

- Utilisation d’un film adhésif imitant le verre fluté pour un effet esthétique à moindre coût.

- Adoption d’un unique rayon de courbure pour toutes les pièces de verre courbé.

- Sélection d’un fournisseur alternatif pour le revêtement de sol.

VALIDATION DES PLANS

Examen et approbation des plans techniques avant leur mise en production, en veillant au respect des normes de qualité.

CERTIFICATION ENVIRONNEMENTALE

Collecte des certificats requis et dépôt de la demande pour la certification "Responsible Store Design", visant à labelliser les points de vente répondant aux critères de responsabilité sociale et environnementale (RSE).

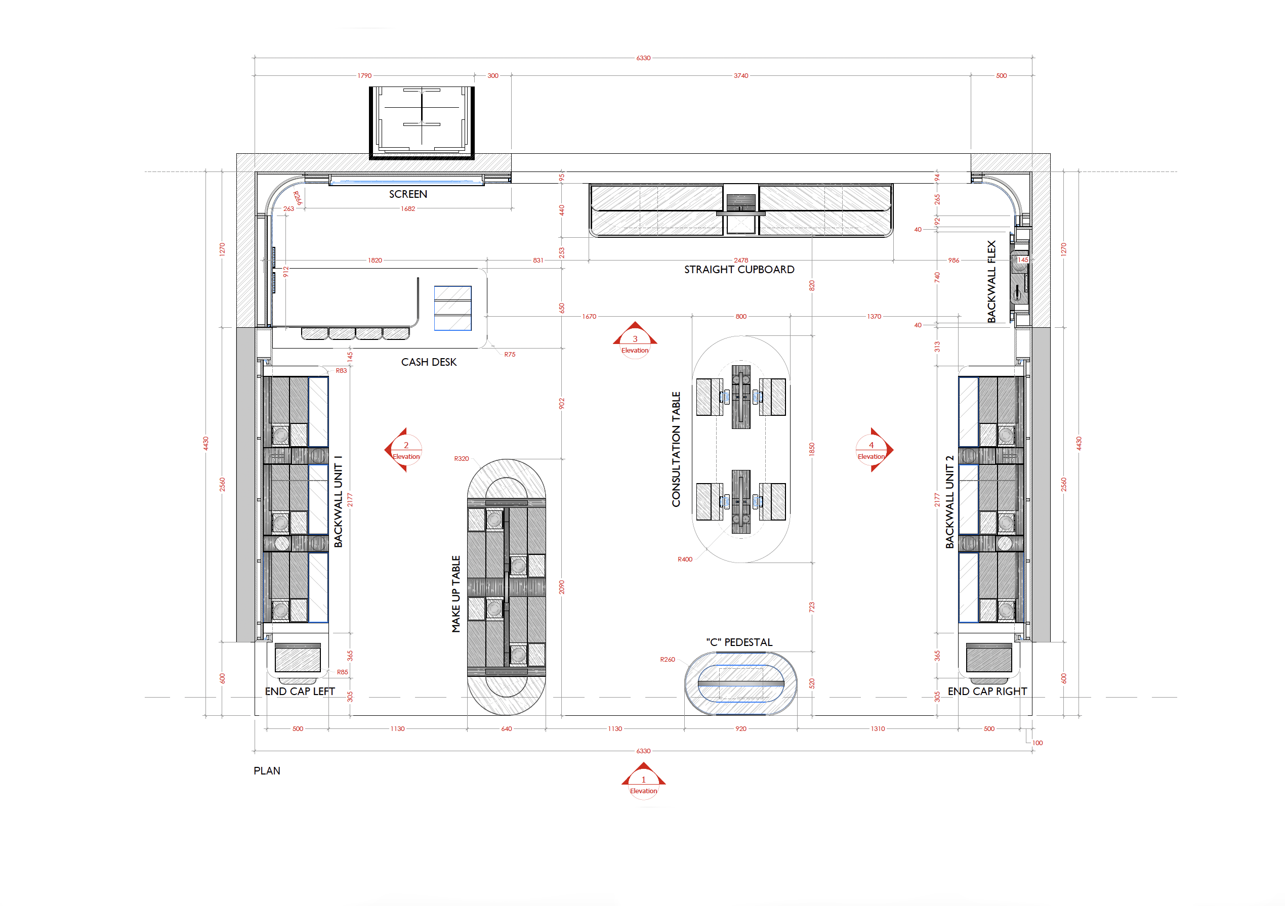
Vue 3D du stand Clinique à El Corte Inglés Castellana Plan d’implantation du stand Clinique à El Corte Inglés Castellana Élévation du projet Clinique à El Corte Inglés Castellana Plan du présentoire maquillage chez Clinique à El Corte Inglés Castellana Photo du comptoir de Clinique à El Corte Inglès Castellana vue sur la table de consultation Photo du comptoir Clinique à El Corte Inglés Castellana, vue sur le mural soin Table de consultation et son canopy sur le stand Clinique à El Corte Inglés Castellana

UNE EXPERIENCE INTERACTIVE

Le displayer utilise des cartes NFC pour orienter les consommateurs. Après un diagnostic de peau via "Clinical Reality", la catégorie contenant le produit recommandé s'illumine. Cette technologie est également présente sur le comptoir des Galeries Lafayette à Paris.

Voir projet Clinique GLH
Capture du compte Instagram Clinique qui celèbre l'ouverture du stand Clinique à El Corte Inglés Castellana

IMPACT

Le lancement de ce point de vente a été promu sur les réseaux sociaux, notamment avec la présence de Nuria Roca, présentatrice TV et influenceuse. Les retours ont été très positifs, et les premiers résultats de ventes sont en attente.

Voir le post Instagram
Vue générale du stand Clinique à El Corte Inglés Castellana, avec l'agencement et les produits exposés

REMERCIEMENTS

Ingrid Montoya VP store design et visual merchandising Clinique Global | Constantina Castellano directrice visual merchandising Clinique Global | Warren Chow directeur retail design Clinique Global | Laure Perret du Cray manager store design et visual merchandising Clinique EMEA | Franscesc Rodriguez responsable store design Clinique Iberia | TJC fabricant du comptoir | Itrayl technologie du displayer interactif | Anouk Abécassis plans détaillés du projet |